Wohnen in Gaaden - naturnah leben
Modern, energieeffizient und mit Liebe zum Detail geplant. Zwei Doppelhäuser und ein Einfamilienhaus direkt vom Baumeister. Ob belags- oder schlüsselfertig – das entscheiden Sie.
Ab EUR 398.500
Modernes Leben in grüner Umgebung
Jede Wohneinheit bietet auf 123, 125 oder 133 m² Wohnnutzfläche alles, was man sich von einem modernen Eigenheim verspricht: helle Räume, einen durchdachten Grundriss und eine hochwertige Ausführung direkt vom Baumeister.
Die Einheiten werden belagsfertig übergeben. Gerne begleiten wir Sie aber auch bis zum schlüsselfertigen Eigenheim.
Auf Wunsch können zum jetzigen Zeitpunkt noch Änderungen an den innenliegenden (nicht tragenden Wänden) vorgenommen werden.
Kaufpreise belagsfertig: ab EUR 398.500
Raumaufteilung
Heimkommen. Durchatmen. Zu Hause sein.
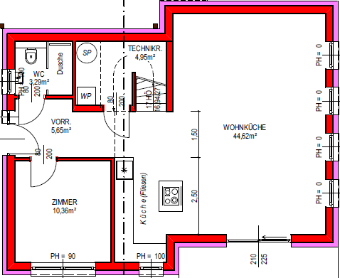
Erdgeschoss
Das Herzstück eines jeden Hauses: Der Wohn- und Essbereich. Der Lebensmittelpunkt ist die großzügige Wohnküche (ca. 37 m²) mit direktem Ausgang auf die Terrasse und in den Garten – ideal für gemütliche Familienabende oder gesellige Runden.
Ergänzt wird das Erdgeschoss durch ein Zimmer, ein WC, einen Vorraum sowie einen Technikraum.
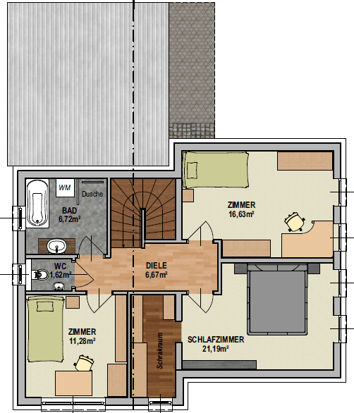
Obergeschoss
Im Obergeschoss stehen mehrere gut geschnittene Zimmer, ein Bad, ein separates WC, ein Schrankraum sowie eine zentrale Diele zur Verfügung. Ausreichend Platz für Familien, Paare, Haustiere, Home-Office-Junkies oder Fitnessliebhaber.
Bodentiefe Fenster sorgen für lichtdurchflutete und freundliche Atmosphäre. Durch Lage zum Garten garantieren sie Helligkeit bei voller Privatsphäre.
Garten und Freifläche
Der Traum vom eigenen Garten: Ruhig gelegen, nicht zu groß, nicht zu klein. Mit genügend Platz für allerhand. Hier lässt es sich lauschig gestalten und gesellig leben.
Die Grundanteile belaufen sich abhängig der jeweiligen Wohneinheit auf zw. 402 und 436 m².
Gleich zwei eigenen PKW-Stellplätze lösen alle Parkplatzsorgen.
Top 1 (Bauplatz 9 oder 10)
Sie wünschen sich ein Zuhause, das praktisch geschnitten, lichtdurchflutet und hochwertig gebaut ist? Dann sind diese beiden Wohneinheiten genau das Richtige für Sie.
Mit rund 123 m² Wohnfläche bietet die Doppelhaushälfte den idealen Rahmen für moderne Lebensstile: genug Platz für Familien mit Kindern, aber auch perfekt für Paare, die sich den Traum vom Eigenheim erfüllen möchten – ohne Kompromisse.
Die Doppelhaushälften werden als Ziegelmassivhäuser ausgeführt und mit einem Wärmedämmverbundsystem (u. a. 16 cm EPS-F PLUS, Silikon-Edelputz) ausgestattet.
Das Besondere
Diese Einheiten verbinden kompakte Eleganz mit intelligenter Raumaufteilung. Jeder Quadratmeter ist optimal genutzt, sodass Sie ein Maximum an Wohnkomfort genießen – ohne unnötige Flächenverluste.
Fenster und Terrassentüren sind als 3-fach Wärmeschutzverglasung vorgesehen; Rollläden mit Elektroantrieb sind im Umfang enthalten.
Für ein angenehmes Wohnklima sorgt die moderne Haustechnik: Eine Vaillant Wärmepumpe in Kombination mit Fußbodenheizung in allen Räumen bietet effizienten, zeitgemäßen Komfort.
Und das Beste: Sie profitieren von der Bauqualität direkt vom Baumeister – solide, wertbeständig und mit Liebe zum Detail umgesetzt.
Top 2 (Bauplatz 9 & 10)
Großzügiges Wohnen: Wenn Sie Wert auf Raum, Licht und Komfort legen, dann sind die Doppelhaushälften mit ca. 125 m² Wohnfläche die perfekte Wahl. Hier genießen Sie die Freiheit eines Hauses, das genug Platz für die ganze Familie bietet – und dabei stilvoll, modern und nachhaltig gebaut ist.
Bodentiefe, große Fensterflächen zum Garten hin garantieren einen hellen, lichtdurchfluteten und freundlichen Wohn- und Essbereich. Der direkte Ausgang auf die Terasse ist in den warmen Monaten ein echter Schatz.
Die Doppelhaushälften werden als Ziegelmassivhäuser ausgeführt und mit einem Wärmedämmverbundsystem (u. a. 16 cm EPS-F PLUS, Silikon-Edelputz) ausgestattet.
Das Besondere
Die 125 m²-Einheiten sind ein echtes Raumwunder – großzügig, ohne verschwenderisch zu sein, durchdacht bis ins Detail. Hier haben Sie die Möglichkeit, Ihre Wohnträume Wirklichkeit werden zu lassen: ob als Familienheim, Rückzugsort im Grünen oder Kombination aus Wohnen und Arbeiten.
Fenster und Terrassentüren sind als 3-fach Wärmeschutzverglasung vorgesehen; Rollläden mit Elektroantrieb sind im Umfang enthalten.
Für ein angenehmes Wohnklima sorgt die moderne Haustechnik: Eine Vaillant Wärmepumpe in Kombination mit Fußbodenheizung in allen Räumen bietet effizienten, zeitgemäßen Komfort.
Mit der Massivbauqualität von Baumeister Matthias Pretzner investieren Sie in ein Zuhause, das Generationen überdauert.
Modern & zeitlos auf angenehmen 133 m²
Das Erdgeschoss des Einfamilienhauses ist offen, hell und einladend – ein Ort, an dem das Leben spielt. Der großzügige Wohn-, Ess- und Kochbereich wird durch bodentiefe Fenster mit Tageslicht geflutet und öffnet sich direkt zur Terrasse und in den Garten. So entsteht ein fließender Übergang zwischen drinnen und draußen, der Lebensqualität spürbar macht.
Ein zusätzliches Zimmer bietet Raum für Gäste, Homeoffice oder individuelle Bedürfnisse, während Vorraum, WC und Technikraum den Alltag angenehm und funktional ergänzen. Ein Grundriss, der Freiheit, Komfort und modernes Wohnen harmonisch verbindet.
Wie alle Gebäude des Projekts wird auch das Einfamilienhaus in Ziegelmassivbauweise errichtet und mit einem hochwertigen Wärmedämm-verbundsystem ausgestattet – für nachhaltige Bauqualität, angenehmes Raumklima und langfristige Wertbeständigkeit.
Im Obergeschoss
Hier entfaltet sich der private Bereich des Einfamilienhauses. Großzügige Zimmer, viel Tageslicht und eine klare Raumstruktur schaffen eine ruhige, entspannte Atmosphäre – ideal zum Abschalten und Ankommen.
Das Schlafzimmer bietet ausreichend Platz für Erholung, während weitere Zimmer flexibel als Kinderzimmer, Homeoffice oder Gästezimmer genutzt werden können. Ein modernes Bad, ein separates WC sowie praktische Nebenräume runden das Obergeschoss funktional ab. Ein Ort, der Privatsphäre, Komfort und Geborgenheit auf natürliche Weise vereint.
Fenster und Terrassentüren sind als 3-fach Wärmeschutzverglasung vorgesehen; Rollläden mit Elektroantrieb sind im Umfang enthalten.
Für ein angenehmes Wohnklima sorgt die moderne Haustechnik: Eine Vaillant Wärmepumpe in Kombination mit Fußbodenheizung in allen Räumen bietet effizienten, zeitgemäßen Komfort.
Mit der Massivbauqualität von Baumeister Matthias Pretzner investieren Sie in ein Zuhause, das Generationen überdauert.
Ansichten
Willkommen in Gaaden
wo Ruhe, Natur und Lebensqualität zuhause sind.

Die Doppelhaushälften befinden sich in Gaaden an der Hohen Wand, einer besonders begehrten Wohnlage im südlichen Niederösterreich. Die Gemeinde liegt eingebettet in eine eindrucksvolle Naturlandschaft am Rand des Wienerwaldes und bietet eine seltene Kombination aus Ruhe, Natur und hoher Lebensqualität – bei gleichzeitig guter Anbindung an den Großraum Wien.
Das Umfeld ist geprägt von einer gewachsenen Wohnstruktur, viel Grün und einem hohen Erholungswert. Zahlreiche Spazier- und Wanderwege beginnen direkt vor der Haustüre und machen die Lage besonders attraktiv für Naturliebhaber und Familien. Trotz der ruhigen Lage sind die umliegenden Orte sowie wichtige Verkehrsanbindungen rasch erreichbar, wodurch sich Alltag und Freizeit ideal verbinden lassen.
Die Infrastruktur für den täglichen Bedarf ist in Gaaden und den angrenzenden Gemeinden gut ausgebaut: Kindergarten, Schulen, Nahversorger sowie medizinische Versorgung befinden sich in komfortabler Nähe. Für größere Einkäufe und ein erweitertes Angebot stehen nahegelegene Einkaufszentren und Ortskerne zur Verfügung.
Gaaden an der Hohen Wand steht für entspanntes Wohnen im Grünen – ein idealer Lebensmittelpunkt für alle, die naturnah leben und dennoch nicht auf eine gute Erreichbarkeit verzichten möchten.
Persönliche Kontaktaufnahme
Baumeister Dipl.-Ing. Matthias Pretzner
Gymnasiumstraße 15/I
1180 Wien
Telefon: +43 676 387 11 26
E-Mail: info@pretzner.com
Rückrufservice - Fragen?! Wir rufen Sie in den nächsten 48 Stunden garantiert zurück!
Baumeisterlexikon
Worin unterscheiden beim Kauf?

Rohbau
Beim Rohbau sind im Normalfall die Baumeisterleistungen enthalten. Das sind u.a.: Erdbau, Fundierung, sämtliche Stahlbeton- und Mauerarbeiten. Meistens ist auch das Dach (Zimmermann, Dachdecker, Spengler) enthalten. Der Innenausbau zählt nicht dazu.

Belagsfertig

Schlüsselfertig
Über Baumeister Matthias Pretzner
Dipl.-Ing. Matthias Pretzner ist seit mehr als 15 Jahren in der Baubranche tätig - Fachwissen, das seinen Kund:innen zu Gute kommt.
Bei der Durchführung seiner Bauprojekte legt er außergewöhnlich großen Wert auf persönliche Beratung sowie lückenlose Umsetzung. Denn jedes Dach trägt individuelle Träume, die er mit größter Sorgfalt realisiert.
Persönliche Beratung und Betreuung
Breites Fachwissen: Ausbildung, Studium, Praxis
Mehr als 15 Jahre Erfahrung in der Baubranche
Baumeister seit 2014
Großes Netzwerk an Gewerken und Finanzierern
Referenzprojekte Neubau Wohnhäuser
Sie möchten sich in einem unverbindlichen und kostenfreien Erstgespräch von mir beraten lassen?
Dann gehen Sie jetzt den ersten Schritt in Richtung Wohntraum:














