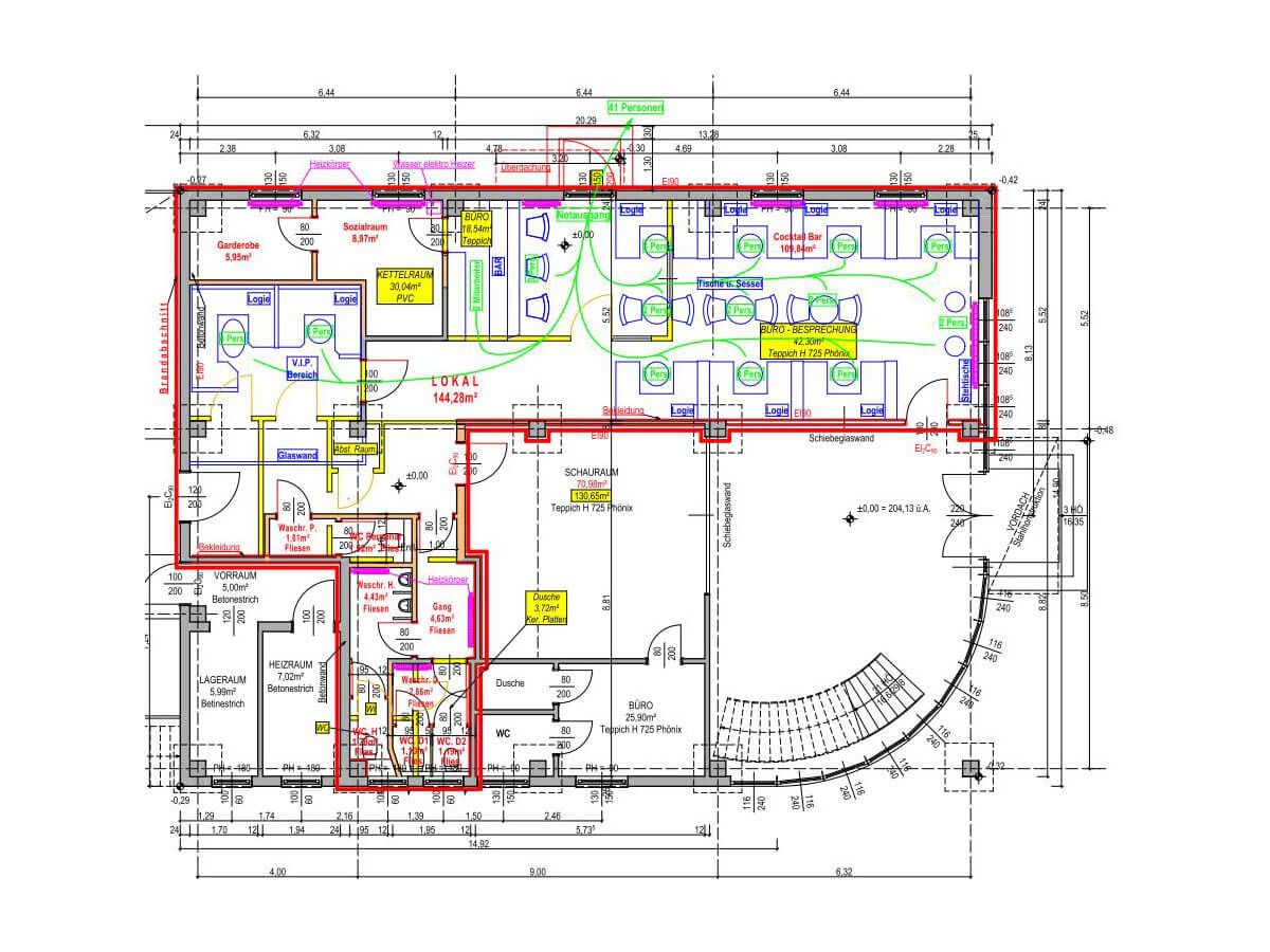
Cocktailbar Weigelsdorf

von | Planung

  • Planung einer Cocktailbar in Weigelsdorf (Bezirk Baden, Niederösterreich)
  • Einreichplan, Energieausweis, Bestandsplan
  • Lüftungs- und Fluchtwegeberechnung
  • Abklärung mit der Gemeinde und Gewerbebehörde
  • Planungsjahr 2022
  • Projektkosten Planung ca. € 9.000,-

Sie möchten sich in einem unverbindlichen und kostenfreien Erstgespräch von mir beraten lassen?

Dann gehen Sie jetzt den ersten Schritt in Richtung Wohntraum: